Verkocht onder voorbehoud
Vraagprijs €299.000
Te Koop in Selfkant : Dorfstraße 60
Gelijkvloerse woning met wintertuin, diepe tuin (1.834 m²) en ligging direct aan de Nederlandse grens.
Bent u op zoek naar een woning die comfort, rust en levensloopbestendigheid combineert? Dan is deze woning absoluut het bekijken waard. De woning is gelegen op een royaal perceel van maar liefst 1.830 m² met een diepe tuin en biedt daarmee volop ruimte voor tuinliefhebbers of een speelgelegenheid.
Dankzij de indeling op de begane grond is deze woning bij levensloopbestendig, maar ook zeer geschikt voor gezinnen of stellen die de voordelen van gelijkvloers wonen waarderen.
Ligging
De woning ligt direct aan de Nederlandse grens en daarmee gunstig voor wie werkt of familie heeft in Nederland. Voorzieningen zoals winkels, scholen en medische faciliteiten zijn in de directe nabijheid te vinden. Bovendien zijn de belangrijkste uitvalswegen naar onder andere Sittard, Geleen, Heerlen en Maastricht eenvoudig bereikbaar, net als de Duitse steden Tüddern, Geilenkirchen en Heinsberg.
Kortom: een ruime woning op een prachtig perceel, waar u nu én in de toekomst comfortabel kunt wonen met alle voorzieningen en verbindingen binnen handbereik.
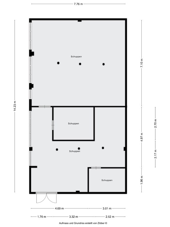
Indeling
Vanuit de hal heeft u achtereenvolgens toegang tot het gastentoilet (ca. 1,5 m²), een badkamer (ca. 5 m²). twee slaapkamers (ca. 13 m² en ca. 12 m²), de woonkamer en de tweede badkamer De woonkamer (ca. 31 m²) biedt veel lichtinval en ruimte voor een gezellige zithoek. De aangrenzende keuken sluit naadloos aan op de eetkamer (ca. 17 m²).
Een bijzonder pluspunt is de wintertuin (ca. 14,5 m²), die het hele jaar door een aangename plek biedt. Vanuit hier is er toegang tot het terras en de diepe tuin. Het perceel van 1.830 m² biedt mogelijkheden voor hobby’s, een moestuin of gewoon heerlijk genieten van de rust en privacy.
Middels de vaste trap bereiken we de eerste verdieping. Deze is op het moment nog in gebruik als bergzolder. Echter, er is voldoende ruimte om hier een extra slaapkamer te creëren.
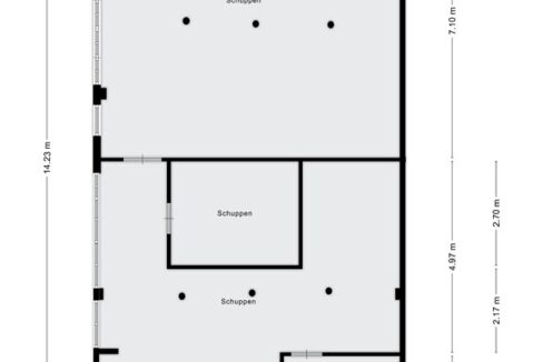
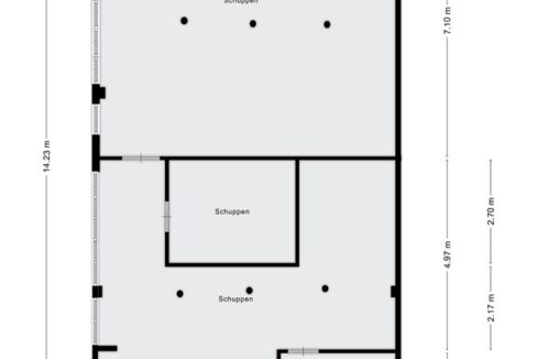
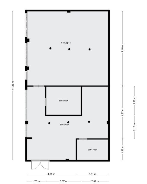
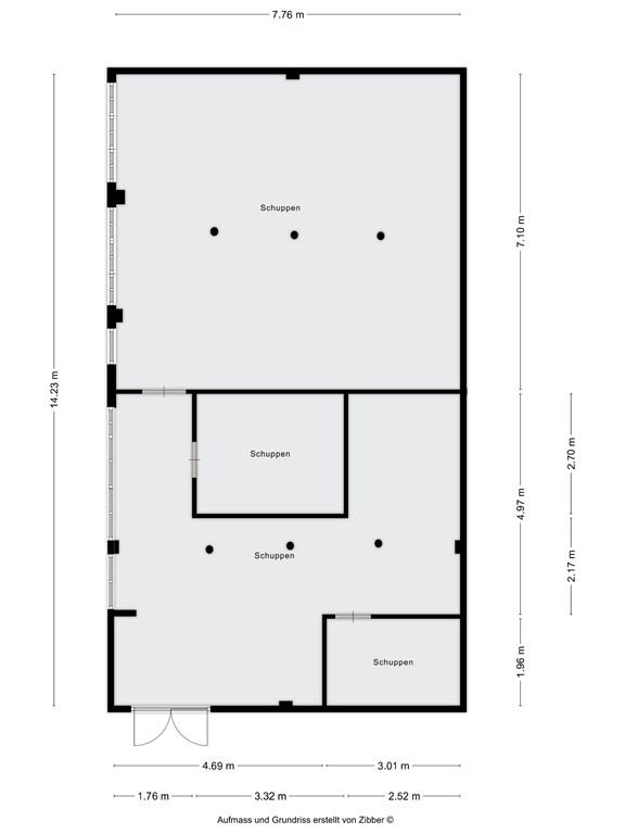
Garage:
Vanuit de oprit hebben we toegang tot de ruime inpandige garage (30,7m²) .
Bijzonderheden:
– De gehele woning is voorzien van kunststof kozijnen met dubbele beglazing;
– De keuken is voorzien van een oven, elektrische kookplaat, koelkast en afzuigkap;
– De eerste badkamer heeft een douche en wastafel;
– De tweede badkamer is voorzien van een toilet, inloopdouche, wastafel en designradiator;
– De ketel Buderus is eigendom (gas, 2008)
– Alle maten betreffen ca. maten;
– De koperscourtage bedraagt 3,57 %
Interesse in Dorfstraße 60? Plan direct een vrijblijvende bezichtiging!
Bekijk ons actuele Woningaanbod in Selfkant
Haus&Huis Makelaardij • Makelaar in Brunssum
Prins Hendriklaan 354 – Brunssum
Sinds 1 januari 2021 zijn de regels voor het energielabel van je woning strenger geworden.
Ga je jouw woning verkopen of verhuren, dan is een energielabel verplicht!
Vroeger kon je een energielabel heel eenvoudig voor een paar euro online aanvragen.
Volgens de nieuwe regels is het verplicht een energieadviseur bij je huis langs te laten komen voor inspectie.
Tijdens deze inspectie beoordeelt de adviseur hoeveel energie je woning gebruikt, hoeveel daarvan hernieuwbare energie is en hoeveel er daarna nog aan fossiele energie wordt gebruikt.
Op basis van deze informatie wordt vervolgens een energielabel berekend.