Te Koop in Kerkrade : Maria Sträterstraat 8
Moderne levensloopbestendige semi-bungalow met energielabel A++++ in het centrum van Kerkrade
Bent u op zoek naar een duurzame, instapklare en toekomstbestendige woning? Dan is deze moderne en uitstekend geïsoleerde levensloopbestendige woning precies wat u zoekt. Met een slaapkamer en badkamer op de begane grond, een extra slaapkamer op de verdieping en een uitzonderlijk energielabel A++++ combineert deze woning comfortabel wonen met zeer lage energielasten.
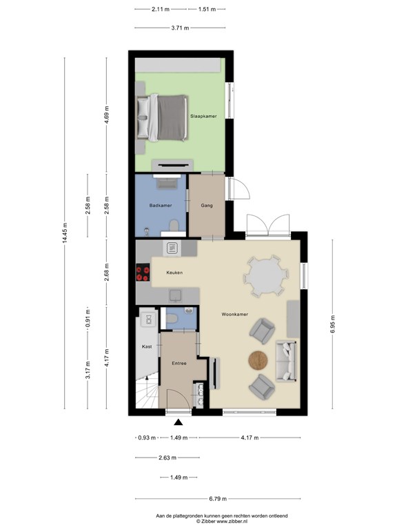
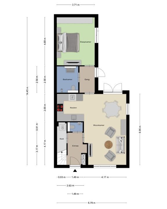
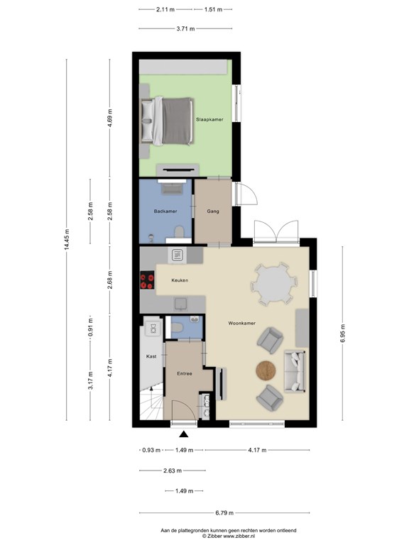
Begane grond
Via de entree komt u in de hal met meterkast, een praktische bergkast en een modern separaat toilet. Vanuit de hal bereikt u de lichte en ruim opgezette woonkamer.
De woonkamer biedt volop ruimte voor een comfortabele zithoek en een ruime eethoek. Grote raampartijen zorgen voor veel natuurlijke lichtinval en een prettige, open sfeer.
De open keuken staat in directe verbinding met de woonkamer en biedt voldoende ruimte voor een moderne keukenopstelling met de navolgende apparatuur inductiekookplaat, combi-oven, afzuigkap, vaatwasmachine, koelkast en diepvries.
Via een tussenhal bereikt u het slaapgedeelte op de begane grond. Hier bevindt zich een ruime slaapkamer aan de achterzijde van de woning. Aangrenzend ligt de badkamer, voorzien van onder andere een inloopdouche, wastafel en toilet. Hierdoor is volledig gelijkvloers wonen mogelijk.
Eerste verdieping
Via de trap in de hal bereikt u de eerste verdieping. Hier bevindt zich een ruime slaapkamer die uitstekend geschikt is als hoofdslaapkamer, logeerkamer of werkruimte. Daarnaast beschikt de verdieping over een technische ruimte waar zich onder andere de installaties van de woning bevinden en extra bergruimte aanwezig is.
Duurzaam en energiezuinig
De woning is gebouwd volgens moderne nieuwbouwnormen en beschikt over energielabel A++++. Dankzij uitstekende isolatie, duurzame installaties en een gasloze uitvoering profiteert u van zeer lage energielasten en optimaal wooncomfort.
Ligging
De woning is gelegen in een rustige straat in het centrum van Kerkrade. Diverse voorzieningen zoals supermarkten, winkels, horeca, scholen en zorgvoorzieningen bevinden zich op korte afstand en vaak zelfs op loopafstand. Hierdoor combineert de woning een rustige woonomgeving met alle gemakken van het centrum dichtbij.
Bereikbaarheid
De ligging is bovendien zeer gunstig ten opzichte van openbaar vervoer en belangrijke uitvalswegen. Het treinstation en busverbindingen bevinden zich in de nabijheid, met goede verbindingen richting Heerlen, Maastricht en andere steden in de regio. Ook de Duitse stad Aachen ligt op korte afstand, ideaal voor werk, winkelen of recreatie.
Bijzonderheden
– Energielabel A++++
– Gasloze en duurzame nieuwbouwwoning
– Levensloopbestendige indeling
– Slaapkamer en badkamer op de begane grond
– Extra slaapkamer op de eerste verdieping
– Technische ruimte met installaties en bergruimte
– Gelegen nabij centrumvoorzieningen
– Goede verbindingen naar omliggende steden en Duitsland
Interesse in Maria Sträterstraat 8? Plan direct een vrijblijvende bezichtiging!
Bekijk ons actuele Woningaanbod in Kerkrade
Haus&Huis Makelaardij • Makelaar in Brunssum
Hommelweg 2-666 – Susteren
Sinds 1 januari 2021 zijn de regels voor het energielabel van je woning strenger geworden.
Ga je jouw woning verkopen of verhuren, dan is een energielabel verplicht!
Vroeger kon je een energielabel heel eenvoudig voor een paar euro online aanvragen.
Volgens de nieuwe regels is het verplicht een energieadviseur bij je huis langs te laten komen voor inspectie.
Tijdens deze inspectie beoordeelt de adviseur hoeveel energie je woning gebruikt, hoeveel daarvan hernieuwbare energie is en hoeveel er daarna nog aan fossiele energie wordt gebruikt.
Op basis van deze informatie wordt vervolgens een energielabel berekend.