Te Koop in Brunssum : Torenstraat 23
EEN BIJZONDERE KANS VOOR STARTERS – SFEERVOLLE TUSSENWONING MET NETTE ACHTERTUIN
Welkom op de Torenstraat 23 in Brunssum! Stap binnen in deze knusse tussenwoning met een warme uitstraling en geniet van de luxe van een eigen huis. Ben jij starter op de woningmarkt, zoek je een betaalbare woning met alles binnen handbereik en zie je het zitten om van een huis écht jouw thuis te maken? Dan zou dit zomaar je volgende adres kunnen zijn.
CENTRALE EN GROENE LIGGING
Dit prachtig woonhuis ligt in een rustige straat. Alles wat je nodig hebt – van supermarkten tot scholen, sportfaciliteiten en uitvalswegen – bevindt zich hier op een steenworp afstand. Je auto kun je moeiteloos nabij parkeren en de bushalte is binnen ca 2 minuten lopen bereikbaar. Dankzij de prettige ligging profiteer je elke dag van de levendigheid van de stad, maar ben je ook snel bij de groene rand waar je even helemaal tot rust kunt komen.
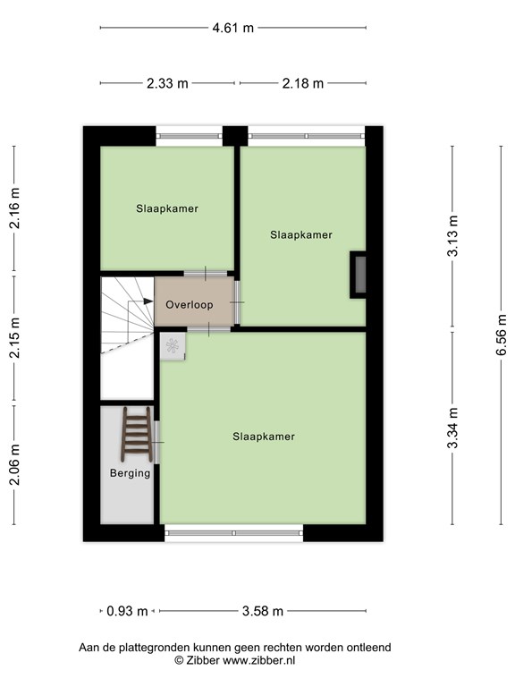
INDELING
Kelder:
Hier vind je een handige provisieruimte (9,3 m²)
Begane grond:
Vanuit de entree heb je toegang tot de ruime woonkamer (25,7 m²) met open keuken (16 m²). De nette keuken is voorzien van een inductiekookplaat, oven, afzuigkap, vaatwasmachine, koelkast en diepvries. Ook vindt u op deze verdieping de badkamer (2,7 m²) en een separaat toilet. De badkamer is voorzien van een ligbad en wastafel.
Tuin:
Vanuit de keuken bereiken we de gezellige overkapping. Middels een trap komen we in de onderhoudsarme achtertuin met volop privacy. Aan de achterzijde is een achteruitgang.
Garage:
Bij de woning hoort een ruime garage (17 m²) met licht en stroomaansluiting. De garage is vanuit de achterzijde bereikbaar.
Eerste verdieping:
Vanuit de overloop hebben we toegang tot 3 slaapkamers (12 m², 6,8 m² en 5 m²). Aan opbergruimte geen gebrek. De grootste slaapkamer heeft een als extra een riante inloopkast (1,9 m²).
Tweede verdieping:
Middels een ladder bereiken we de bergzolder. Deze is zeer geschikt voor het opbergen van bijvoorbeeld de seizoensspullen.
Bijzonderheden:
– Op het dak liggen 8 zonnepanelen;
– De gehele woning is voorzien van rolluiken;
– De gehele woning heeft kunststof kozijnen met dubbele beglazing;
– De keuken is uitgerust met een inductiekookplaat, oven, vaatwasmachine, koelkast, diepvries en afzuigkap;
– De badkamer is voorzien van een ligbad en wastafel;
– De cv-ketel is gehuurd;
– De woning gelegen in een kindvriendelijke woonwijk;
– Op de begane grond ligt een grindvloer (geseald);
– Onderhoudsvrije achtertuin met garage en achterom;
– Vrij parkeren.
– In de nabijheid van verbindingswegen richting België, Duitsland en Maastricht en buitenring, binnenring;
– Alle afmetingen zijn indicatief en hier kunnen geen rechten aan worden ontleend.
Interesse in Torenstraat 23? Plan direct een vrijblijvende bezichtiging!
Bekijk ons actuele Woningaanbod in Brunssum
Haus&Huis Makelaardij • Makelaar in Brunssum
Burgemeester Loysonstraat 27 – Landgraaf
Sinds 1 januari 2021 zijn de regels voor het energielabel van je woning strenger geworden.
Ga je jouw woning verkopen of verhuren, dan is een energielabel verplicht!
Vroeger kon je een energielabel heel eenvoudig voor een paar euro online aanvragen.
Volgens de nieuwe regels is het verplicht een energieadviseur bij je huis langs te laten komen voor inspectie.
Tijdens deze inspectie beoordeelt de adviseur hoeveel energie je woning gebruikt, hoeveel daarvan hernieuwbare energie is en hoeveel er daarna nog aan fossiele energie wordt gebruikt.
Op basis van deze informatie wordt vervolgens een energielabel berekend.